物件価格
月々のお支払い例
1,659.77円
※金利1.20% 借入金額:物件価格、借入期間35年
物件の特徴
主な設備
公営水道
下水道
公共下水
都市ガス
給湯
コンロ三口
システムキッチン
バス
トイレ
温水洗浄便座
B/T別室
室内洗濯機置場
洗面所独立
エアコン
2面採光
フローリング
全室フローリング
クローゼット
収納スペース
全居室収納
バルコニー
エレベーター
駐輪場
バイク置場
主な特徴
管理人日勤
角部屋
小学校徒歩10分以内
ペット不可
◆角部屋
◆収納豊富です
◆小・中学校徒歩10分以内にあるのでファミリー世帯にもおすすめ
◆周辺には生活利便施設そろっております
物件概要
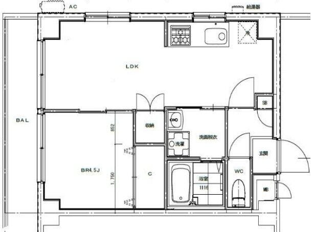
| 価格 | 1,980万円 | 間取り | 1LDK |
|---|---|---|---|
| 物件種別 | 中古マンション | ||
| 所在地 | 東京都葛飾区お花茶屋1丁目 | ||
| アクセス | 京成本線『お花茶屋』 徒歩2分 (約160m) 京成本線『堀切菖蒲園』 徒歩19分 (約1520m) 京成本線『青砥』 徒歩23分 (約1840m) |
||
| 専有面積 | 壁芯 37.60㎡ | 所在階 | 6階建/2階部分 |
| 主要採光 | 北東向 | バルコニー | 4.00㎡ |
| その他 | |||
| 権利 | 所有権 |
||
| 保証・評価 | |||
| リフォーム | |||
| 総戸数 | 32戸 | 面積 | |
| 築年月 | 1977年(昭和52年)09月築 | 建物構造 | RC |
| 施工会社 | 大長崎建設(株) | ||
| 管理会社 | ファシリティパートナーズ(株) | 管理方式 | 全部委託 日勤管理 |
| 駐車場 | 【駐車場】なし 【バイク置き場】あり 料金: 【駐輪場】あり 料金: |
||
| 都市計画 | 用途地域 | 商業 | |
| 建ぺい/容積率 | 土地国土法 | ||
| 法令制限 | |||
| 小学区 | 上千葉小学校 徒歩10分 (約800m) | 中学区 | 双葉中学校 徒歩5分 (約400m) |
| 現況 | 空 | 引渡 | 相談 |
| 管理費 | 16,603円/月 | 修繕積立金 | 3,877円/月 |
| その他費用 | |||
| 周辺環境 | 京成電鉄 お花茶屋駅 徒歩2分 (約110m) 葛飾区立上千葉小学校 徒歩10分 (約800m) 葛飾区立双葉中学校 徒歩5分 (約400m) まいばすけっと お花茶屋駅前 徒歩2分 (約110m) そらまめ保育園 お花茶屋駅前 徒歩2分 (約160m) どらっぐぱぱす お花茶屋駅前店 徒歩2分 (約150m) ファミリーマートお花茶屋店 徒歩2分 (約110m) 曳舟川親水公園 徒歩3分 (約190m) 平成立石病院 徒歩12分 (約950m) お花茶屋駅前郵便局 徒歩3分 (約190m) |
||
| 備考 | ペット不可 | ||
| 物件番号 | 4667997 | 取引態様 | 媒介 |
















迅速・丁寧な対応でお客様のご都合に合わせてご案内いたします。相続や住宅ローンに関するお悩み・ご不明等お気軽にご相談下さい。