物件価格
月々のお支払い例
1,659.77円
※金利1.20% 借入金額:物件価格、借入期間35年
物件の特徴
主な設備
公営水道
下水道
公共下水
都市ガス
給湯
食器洗浄乾燥機
コンロ三口
グリル
カウンターキッチン
システムキッチン
バス
ユニットバス
追焚機能
浴室暖房
浴室乾燥機
浴室に窓
シャワー
トイレ
温水洗浄便座
B/T別室
室内洗濯機置場
洗面所独立
床暖房
照明器具
モニタ付インターホン
火災警報器/報知機
2面採光
フローリング
全室フローリング
クローゼット
クローゼット2箇所
クローゼット3箇所
収納スペース
シューズボックス
バルコニー
両面バルコニー
南面バルコニー
エレベーター
駐輪場
バイク置場
主な特徴
管理人日勤
角部屋
南向
小学校徒歩10分以内
スーパーが近い
眺望良好
通風良好
陽当り良好
最上階
ペット相談
ペット対応
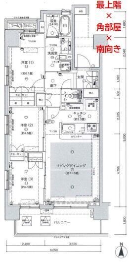
◆最上階角部屋、南向きに位置している希少な物件です!
◆眺望が良好で、スカイツリーが良く見えます♪
◆玄関には大型物入があり、荷物をたくさん収納できます!
◆近隣施設が充実してます♪
物件概要
| 価格 | 5,390万円 | 間取り | 3LDK |
|---|---|---|---|
| 物件種別 | 中古マンション | ||
| 所在地 | 東京都葛飾区鎌倉2丁目 | ||
| アクセス | 京成本線『京成小岩』 徒歩11分 (約880m) JR総武・中央緩行線『小岩』 徒歩17分 (約1360m) |
||
| 専有面積 | 壁芯 67.66㎡ | 所在階 | 7階建/7階部分 |
| 主要採光 | 南向 | バルコニー | 南向9.90㎡ |
| その他 | |||
| 権利 | 所有権 |
||
| 保証・評価 | |||
| リフォーム | |||
| 総戸数 | 40戸 | 面積 | |
| 築年月 | 2017年(平成29年)07月築 | 建物構造 | RC |
| 施工会社 | ㈱吉原組 | ||
| 管理会社 | 株式会社大京アステージ | 管理方式 | 全部委託 日勤管理 管理組合あり |
| 駐車場 | 【駐車場】空無 【バイク置き場】空有 料金:2000円/月 【駐輪場】空有 料金:200円/月 |
||
| 都市計画 | 用途地域 | 1種中高 | |
| 建ぺい/容積率 | 土地国土法 | ||
| 法令制限 | |||
| 小学区 | 高砂小学校 徒歩10分 (約800m) | 中学区 | 高砂中学校 徒歩11分 (約850m) |
| 現況 | 居住中 | 引渡 | 相談 |
| 管理費 | 8,500円/月 | 修繕積立金 | 9,880円/月 |
| その他費用 | |||
| 周辺環境 | 京成小岩駅 徒歩12分 (約890m) 小中一貫教育校高砂けやき学園葛飾区立高砂小学校 徒歩10分 (約800m) 小中一貫教育校高砂けやき学園葛飾区立高砂中学校 徒歩11分 (約850m) ライフ葛飾鎌倉店 徒歩4分 (約320m) 京進のほいくえん HOPPA京成小岩駅 徒歩3分 (約230m) どらっぐぱぱす西小岩店 徒歩6分 (約460m) セブン-イレブン 葛飾鎌倉2丁目店 徒歩4分 (約310m) みんなのひろば児童遊園 徒歩3分 (約190m) 吉田機司クリニック 徒歩11分 (約870m) 葛飾鎌倉郵便局 徒歩9分 (約720m) |
||
| 備考 | ペット飼育可(細則有) | ||
| 物件番号 | 4602220 | 取引態様 | 媒介 |
値下げ物件















担当エージェント:店長井上直臣
迅速・丁寧な対応でお客様のご都合に合わせてご案内いたします。相談や住宅ローンに関するお悩み・ご不明等お気軽にご相談下さい。